Descripción
Te presentamos una planta baja totalmente rehabilitada en el barrio de Lourdes, una zona tranquila y con todos los servicios a mano.
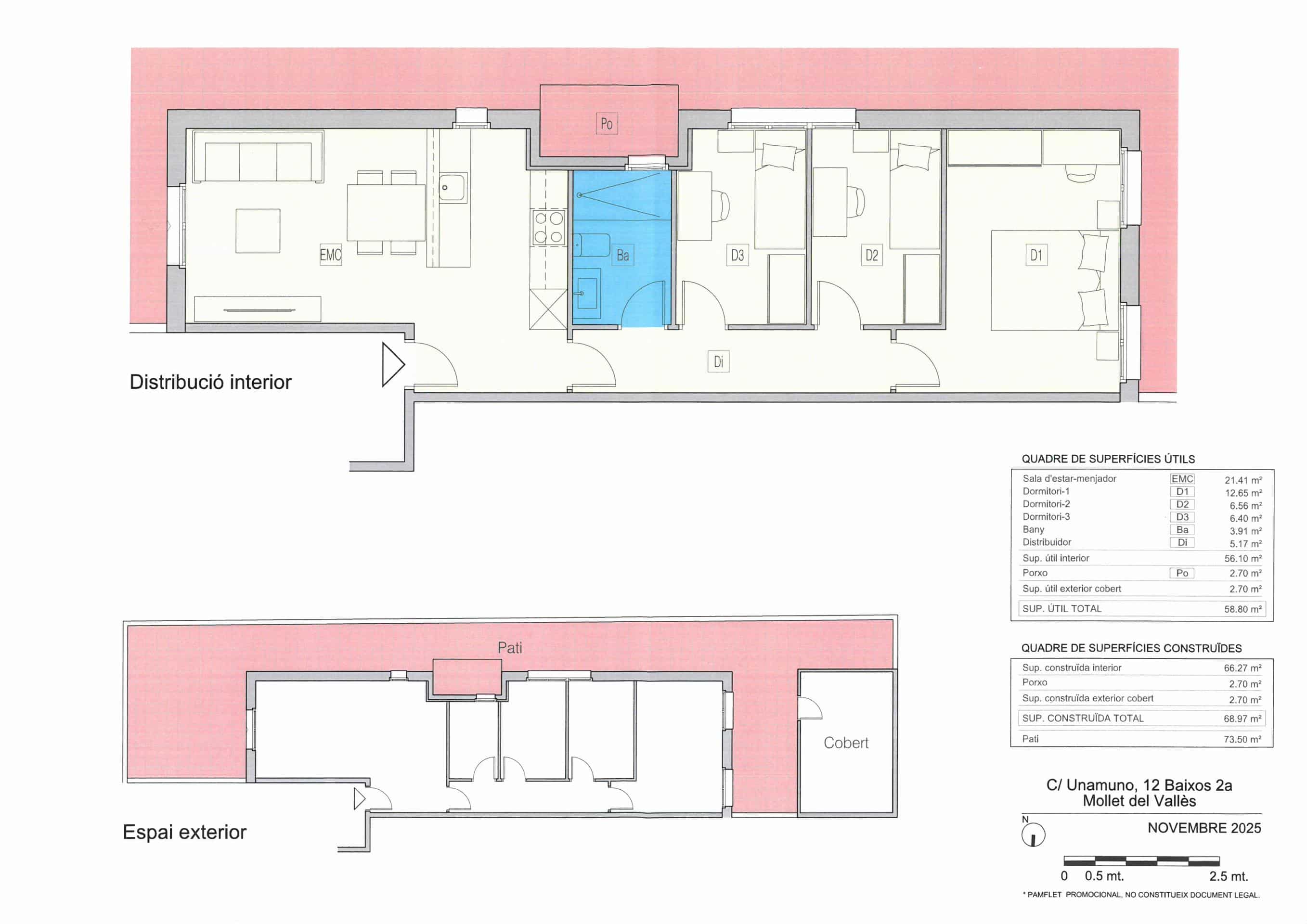
La vivienda dispone de 66 m² construidos y cuenta con una terraza de 76 m², ideal para disfrutar del aire libre.
Se distribuye en 3 habitaciones (una doble y dos individuales), un salón-comedor con cocina americana y un baño con ducha.
Los acabados incluyen suelo de parquet en todas las estancias y gres en el baño, ventanas de PVC Climalit con doble acristalamiento y persianas motorizadas, bomba de frío/calor por conductos en todas las estancias, puertas lacadas en blanco, agua sanitaria mediante calentador eléctrico e iluminación de ojos buey.
TODAS LAS FOTOS EXPUESTAS CORRESPONDEN A ACABADOS UTILIZADOS POR EL CONSTRUCTOR, EN OBRAS ANTERIORES, PRESENTANDO EL NIVEL DE CALIDAD PREVISTO PARA ESTA VIVIENDA.
Previsión de entrega: MARZO 2026














