Dirección: Montmelo, Sant crist de la grua
Ciudad: Montmeló
Área: Sant crist de la grua
Provincia: Barcelona
Codigo postal: 08160
País: Espana
Descripción
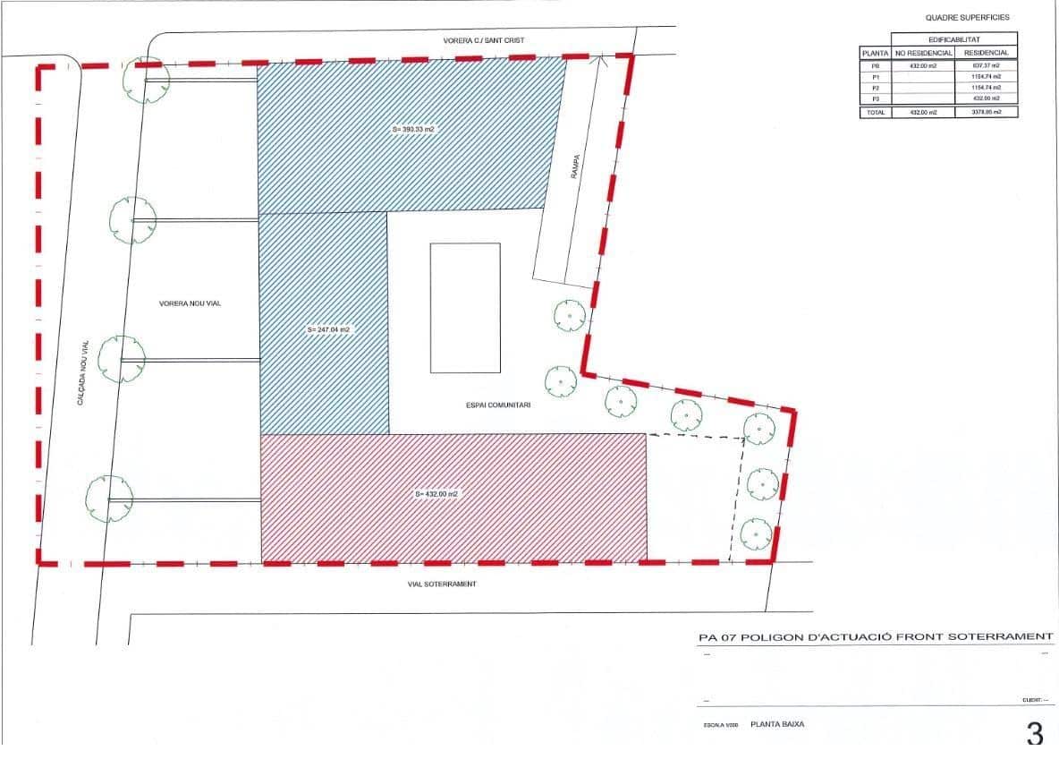
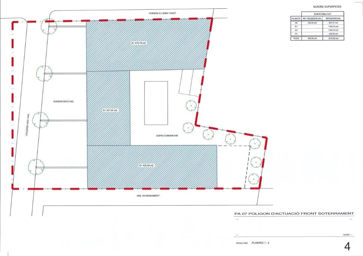
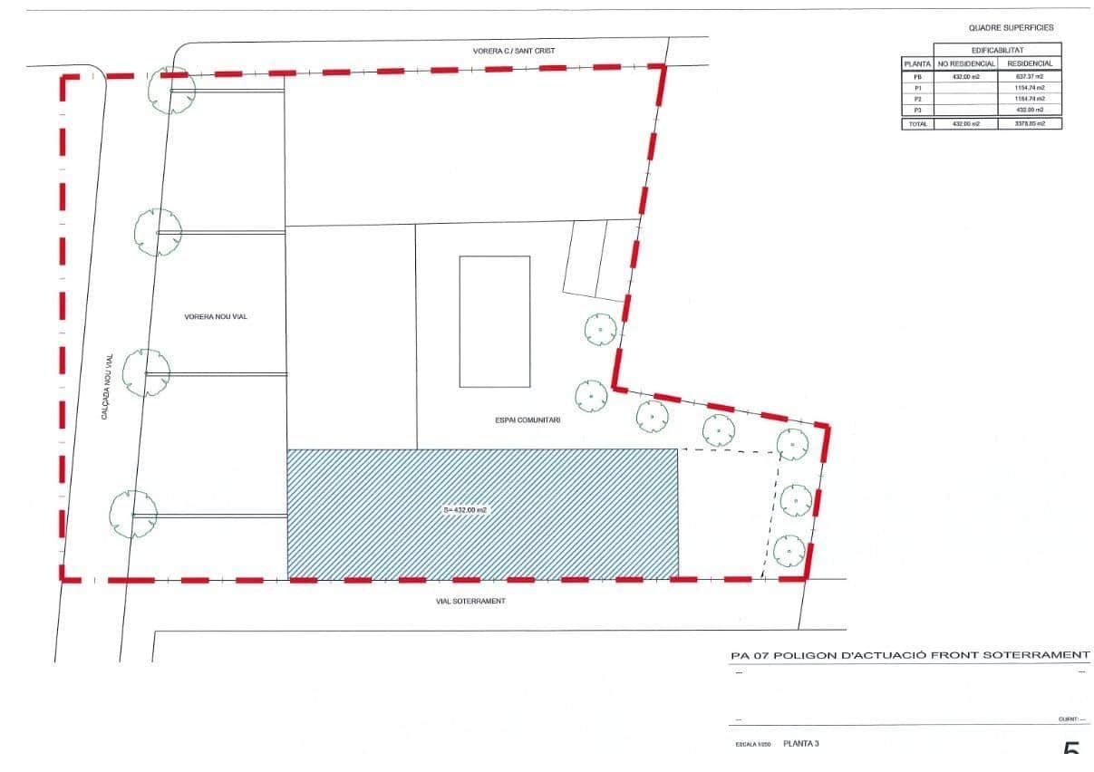
Dos solares urbanizables en venta en Montmeló a dos minutos caminando de la estación de tren y del centro de la población, disponemos de un anteproyecto de edificio con una construcción de planta sótano, plana baja, primer piso, segundo piso y tercer piso, el edificio del anteproyecto tiene 42 viviendas (17 viviendas Protección Oficial y 25 vivienda libres) y 80 plazas de aparcamiento,
ID de Inmueble: 152877
Precio: 950.000€
Tamaño del lote del Inmueble: 2.724 m2
Listados similares
Destacado
Venta
Local comercial de 94m² en venta con rentabil...
100.000€
Si buscas un local como inversión, este tiene algo que muchos no pueden ofrecer: ingresos desde el p ...
Plaza de parking en venta en Montmeló
10.000€
Plaza de aparcamiento individual con buena maniobrabilidad y acceso cómodo por puerta automática.
Plaza de parking en venta en Montmeló
17.500€
Dos plazas de aparcamiento conjuntas que se venden en un mismo pack en el centro de Montmeló. Fácil ...






