Descripción
Te presentamos esta casa unifamiliar esquinera en Cal Jardiner, una vivienda amplia, luminosa y muy bien distribuida, ideal para familias que buscan espacio, comodidad y zonas exteriores en un entorno residencial tranquilo.
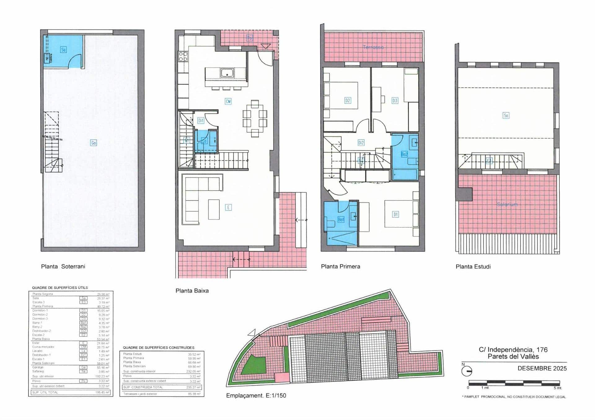
La vivienda tiene acceso a pie de calle y cuenta con 235 m² construidos, rodeados por un gran jardín y terrazas gracias a su privilegiada condición de casa esquinera, lo que aporta privacidad y una excelente entrada de luz natural.
En la planta principal encontramos un espectacular salón-comedor con cocina de 60 m², (PENDIENTE DE REFORMAR COCINA Y PONER PARQUET EN TODO LA PLANTA), un espacio abierto pensado para disfrutar del día a día y de reuniones en familia o con amigos con salida al patio exterior. En esta planta dispone también de un aseo de cortesía. Está prevista una reforma en esta planta, unificando y actualizando la cocina para integrarla aún más con el comedor, aportando un estilo moderno y funcional.
La primera planta alberga la zona de descanso, con tres habitaciones:
La habitación principal en suite, con baño privado y vestidor, una habitación doble y una habitación individual. Además, esta planta cuenta con un segundo baño completo que da servicio al resto de dormitorios.
En la planta superior se encuentra una gran buhardilla, habilitada como habitación doble o estudio con salida a terraza, un espacio versátil ideal como dormitorio, despacho, zona de ocio o sala polivalente.
En la planta sótano, la vivienda dispone de un garaje de 70m² construidos, con capacidad para tres vehículos y un lavadero, aportando un plus de comodidad y almacenaje.
En cuanto a calidades, la casa cuenta con suelos de parqué en la planta principal y terrazo en el resto de la vivienda, puertas de sapeli, ventanas de aluminio y calefacción de gas natural.
Una vivienda con grandes posibilidades, amplios espacios interiores y exteriores, y ubicada en una de las zonas más demandadas para vivir con tranquilidad sin renunciar a la comodidad.
