Dirección: Montornes del Valles, Montornes centre
Ciudad: Montornès del Vallès
Área: Montornes centre
Provincia: Barcelona
Codigo postal: 08170
País: Espana
Descripción
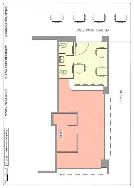
Bar en alquiler, 2 aseos, accesibilidad buena desde el Mercado Municipal y desde la calle, agua, luz y gas, cocina con salida de humos. Esta situado en una de las calles con mas paso de personas, a 50 metros hay un parque para niños con columpios, los viernes ponen el mercado semanal de la fruta justo delante. Equipado con mobiliario. + BASURAS + FIANZA DE 3.000€
SIN TRASPASO
Índice energético en kWh/m2a: E
Clase energética: E
A
B
C
D
E kWh/m²a Clase de energía E
EF
G
Emisiones de gases de efecto invernadero kg/CO2: E
ID de Inmueble: 156547
Precio: 550€
Tamaño de la propiedad: 50 m2
Baños: 2
Listados similares
Destacado
Alquiler
Local comercial de 50m² en alquiler en Montor...
550€
Bar en alquiler, 2 aseos, accesibilidad buena desde el Mercado Municipal y desde la calle, agua, luz ...
Destacado
Alquiler
Local comercial de 40m² en alquiler en Montor...
575€
Local con mucho paso peatonal, se encuentra en Montornés del Vallés, situado en la travesía del pueb ...
Destacado
Alquiler
Local comercial de 45m² en alquiler en Montor...
600€
¡Atención emprendedores! Este local céntrico está perfectamente preparado para abrir tu bar, ubicado ...













