Dirección: Montmelo, Sant crist de la grua
Ciudad: Montmeló
Área: Sant crist de la grua
Provincia: Barcelona
Codigo postal: 08160
País: Espana
Descripción
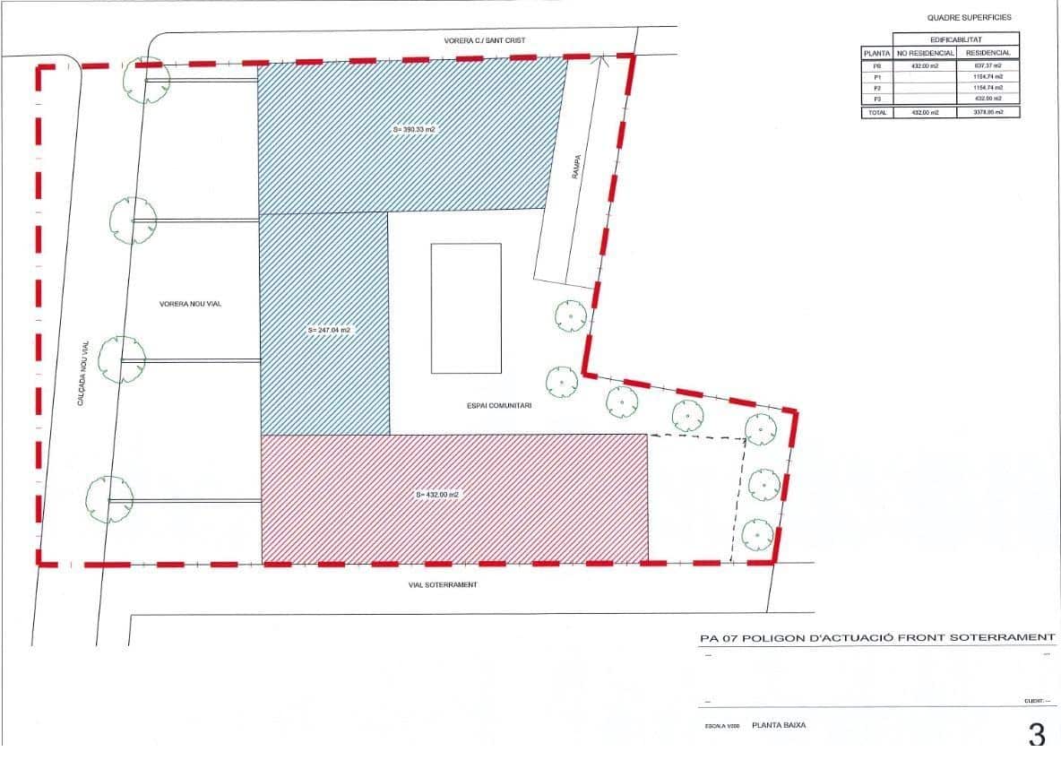
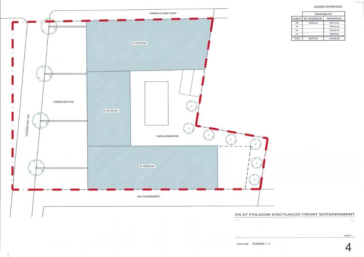
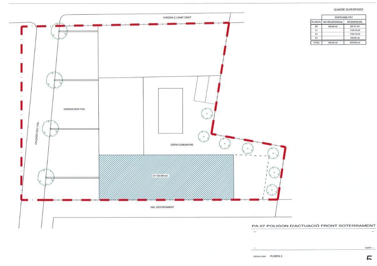
Dos solares urbanizables en venta en Montmeló a dos minutos caminando de la estación de tren y del centro de la población, disponemos de un anteproyecto de edificio con una construcción de planta sótano, plana baja, primer piso, segundo piso y tercer piso, el edificio del anteproyecto tiene 42 viviendas (17 viviendas Protección Oficial y 25 vivienda libres) y 80 plazas de aparcamiento,
ID de Inmueble: 158726
Precio: 950.000€
Tamaño del lote del Inmueble: 2.724 m2
Listados similares
Plaza de parking en venta en Montmeló
10.000€
Plaza de aparcamiento individual con buena maniobrabilidad y acceso cómodo por puerta automática.
Plaza de parking en venta en Montmeló
17.500€
Dos plazas de aparcamiento conjuntas que se venden en un mismo pack en el centro de Montmeló. Fácil ...
Destacado
Venta
Plaza de parking en venta en Montmeló, Sant C...
8.000€
Plaza de aparcamiento individual para vehículo pequeño/mediano o para dos motocicletas, con acceso c ...






