Dirección: Montmelo, Sant crist de la grua
Ciudad: Montmeló
Área: Sant crist de la grua
Provincia: Barcelona
Codigo postal: 08160
País: Espana
Descripción
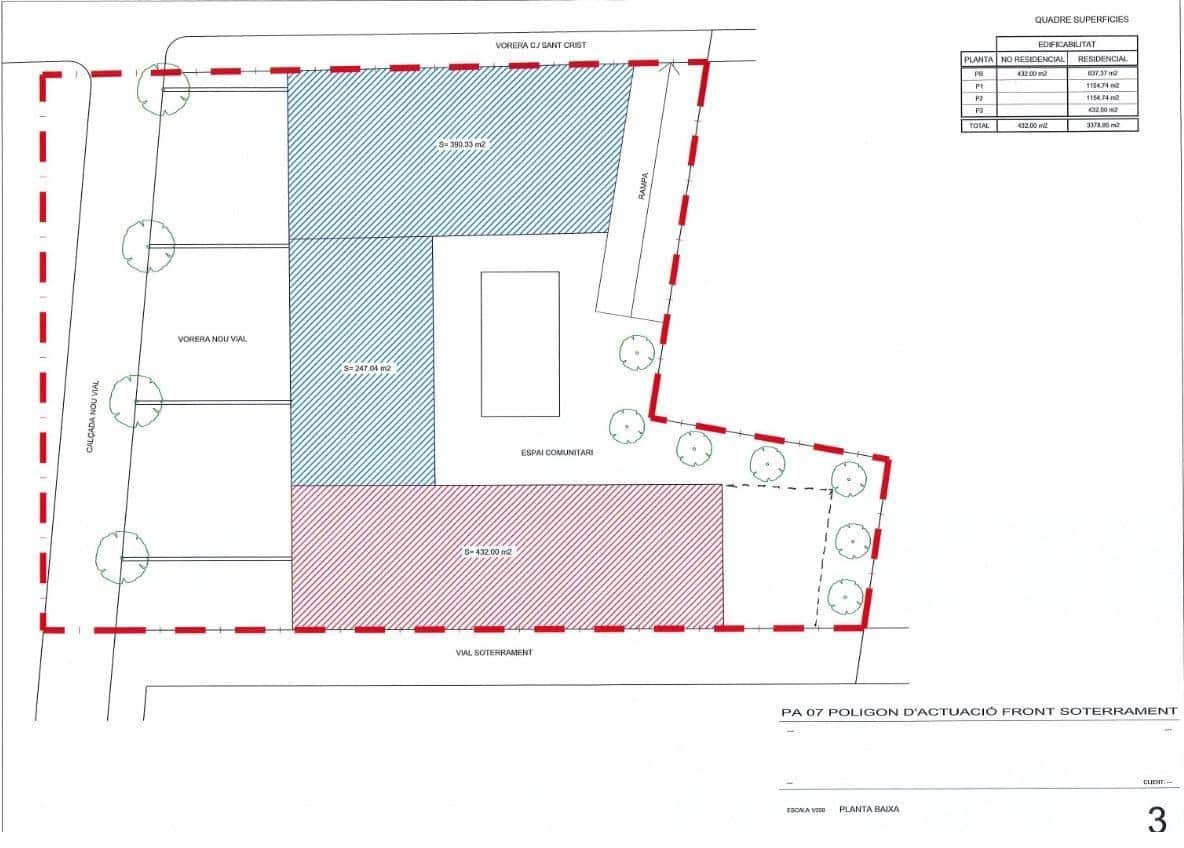
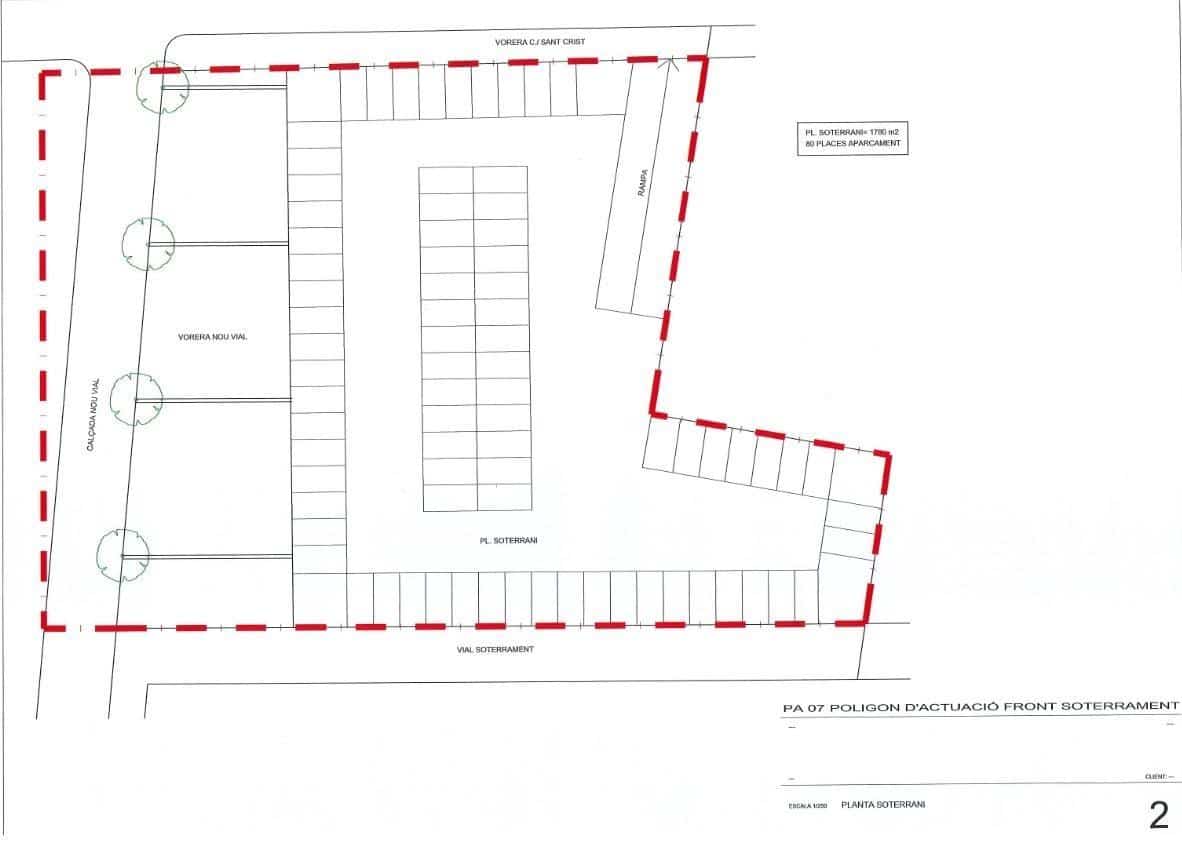
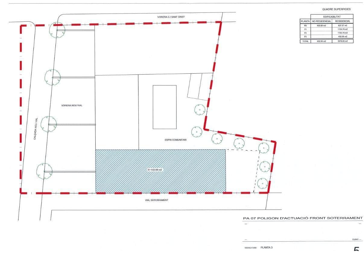
Dos solares urbanizables en venta en Montmeló a dos minutos caminando de la estación de tren y del centro de la población, disponemos de un anteproyecto de edificio con una construcción de planta sótano, plana baja, primer piso, segundo piso y tercer piso, el edificio del anteproyecto tiene 42 viviendas (17 viviendas Protección Oficial y 25 vivienda libres) y 80 plazas de aparcamiento,
ID de Inmueble: 163303
Precio: 950.000€
Tamaño del lote del Inmueble: 2.724 m2
Listados similares
Plaza de parking en venta en Montmeló
10.000€
Plaza de aparcamiento individual con buena maniobrabilidad y acceso cómodo por puerta automática.
Destacado
Venta
Plaza de parking en venta en Montmeló, Sant C...
8.000€
Plaza de aparcamiento individual para vehículo pequeño/mediano o para dos motocicletas, con acceso c ...
Destacado
Venta
Local comercial de 110m² en venta en Montmeló
150.500€
¡Descubre tu nuevo espacio ideal! Te presentamos este amplio local de 122 m², perfecto para emprende ...






